2017.08HIBIYA PARKFRONT
COMMUNITY ENRICHMENT
2018年 ランドスケープ作品選集掲載 受賞
第10回東急グループ環境賞 受賞

日比谷パークフロントは、由緒と歴史ある街の品格を受け継ぎながら、
日比谷公園との一体感を演出し、外構、建物の中まで公園の中のような
居心地の良い環境を提供すると共に、周辺との回遊性をさらに高め、
地域に開かれたテナントオフィスビルとして、
創造性と生産性を向上させる快適なワークプレイスを提供します。
| 所在地 | 東京都千代田区内幸町2-1-6 |
|---|---|
| 事業主 | グリーンアセットインベストメント特定目的会社 (ケネディクス株式会社、東急不動産株式会社、株式会社日本政策投資銀行) |
| 設計 | KAJIMA DESIGN |
| 施工 | 鹿島建設株式会社 |
| 竣工 | 2017年5月31日 |
| 規模 | 敷地面積6,089.61㎡ 延床面積67,123.88㎡ 地上21F・地下4F 緑化面積1,915.06㎡ |
日比谷公園との緑の連続性に配慮した計画で、地上部ガーデンプロムナードには100種を超える樹木・草花を植えることで、公園の中を散策しているような豊かな回遊空間を形成しています。
好きな草花を自らの手で育てる入居者用花壇
日比谷公園の緑とつながる室内緑化
豊かな緑に包まれた空間で過ごす新たな働き方=“グリーンワークスタイル”、あらゆる場所で緑を体感できるしつらえが、オフィス利用者だけでなく広く人々のウェルネスに働きかけ、円滑なコミュニケーションを促進します。
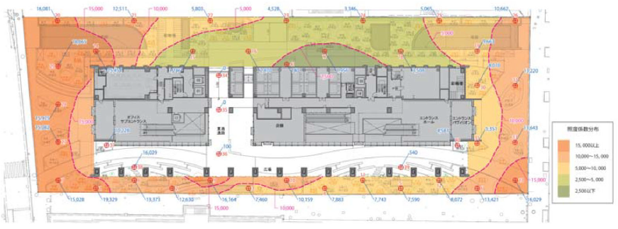
軒下や日影エリアでの光量シミュレーションに基づく植栽計画
ピロティの内外をつなぐ100種の植栽帯
植栽光量シミュレーションによる照度分布図
照度係数・分布図を基にした植栽計画
通常緑化が困難とされる軒下空間や、日照条件が厳しいエリアにも緑化に挑んでいます。これは設計段階において、計画後に得られる照度に基づき樹種選定を行う「植栽のための光量シミュレーション」というエビデンス設計を経ることによって、照度環境が厳しいエリアにも緑化を実現するものです。
100種の植栽による散歩道
生物の水場として利用
飛来する鳥類が営巣できるように
千代田区の生物多様性地域戦略を踏まえ、恵まれた周辺の緑地空間と一体となって緑豊かな環境を創造することにより、エリア全体の緑の連続性を拡充します。また、地域に生息する生物に配慮した植栽計画とすることにより、地域全体の生物多様性の向上へ寄与する計画としています。
※写真提供:東急不動産株式会社、鹿島建設株式会社